Marly-le-Roi (78160) MARLY LE ROI - DERNIER ETAGE - 49.31m² + loggia 10.30m²
Réf : 2629
SOUS OFFRE ACCEPTEE PAR LES AGENCES LAMOURET.
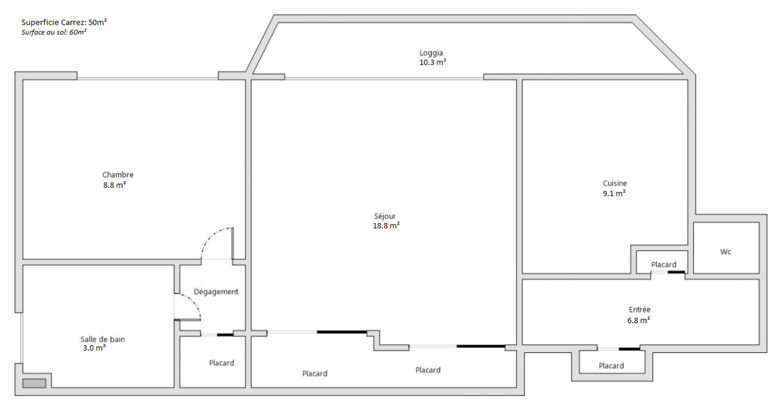
Dans une résidence avec piscine et court de tennis, appartement de 49.31m² au dernier étage avec ascenseur. Vue imprenable vers Saint-Germain-en-Laye et la vallée de la Seine.
Entrée parquetée avec placards, wc et lave-mains, séjour 18.65m² avec de nombreux rangements, cuisine équipée avec four, plaque de cuisson, hotte et micro-ondes, loggia de 10.30m², dégagement avec placards, chambre, salle de bain, wc. Cave. Place de parking extérieur privée.
Chauffage collectif gaz eau chaude et eau froide. Charges mensuelles autour de 200€.
239.000€ HAI, soit 227.619€ Net Vendeur + 11.381€ de frais d'agence à la charge de l'acquéreur. (5.00 % d'honoraires TTC à la charge de l'acquéreur.)
Dans une résidence avec piscine et court de tennis, appartement de 49.31m² au dernier étage avec ascenseur. Vue imprenable vers Saint-Germain-en-Laye et la vallée de la Seine.
Entrée parquetée avec placards, wc et lave-mains, séjour 18.65m² avec de nombreux rangements, cuisine équipée avec four, plaque de cuisson, hotte et micro-ondes, loggia de 10.30m², dégagement avec placards, chambre, salle de bain, wc. Cave. Place de parking extérieur privée.
Chauffage collectif gaz eau chaude et eau froide. Charges mensuelles autour de 200€.
239.000€ HAI, soit 227.619€ Net Vendeur + 11.381€ de frais d'agence à la charge de l'acquéreur. (5.00 % d'honoraires TTC à la charge de l'acquéreur.)
TRAD_SIROCCO_Caracteristique
Valeurs
Code postal
78160
Surface habitable (m²)
49,31 m²
Nombre de chambre(s)
1
Nombre de pièces
2
Etage
10
Ascenseur
OUI
TRAD_SIROCCO_Caracteristique
Valeurs
Nb de salle de bains
1
Type de cuisine
Equipée
Mode de chauffage
Autre
Type de chauffage
Autre
Format de chauffage
Collectif
Interphone
OUI
Balcon
NON
TRAD_SIROCCO_Caracteristique
Valeurs
Quote Part annuelle des charges
0 €
Logement à consommation énergétique excessive : classe F
Montant estimé des dépenses annuelles d'énergie de ce logement pour un usage standard est compris entre 1 040 € et 1 450 € . 2021 étant l'année de référence des prix de l'énergie utilisés pour établir cette estimation.
Détails des diagnostics énergétiques
Logement à consommation énergétique excessive : classe F
Montant estimé des dépenses annuelles d'énergie de ce logement pour un usage standard est compris entre 1 040 € et 1 450 € . 2021 étant l'année de référence des prix de l'énergie utilisés pour établir cette estimation.
